AccueilAncêtresBiologieMorphologieClassificationPrédationEncyclopédieAvec l'HommeFauconnerieNichoirsPerchoirsLiens

 

 

Les nichoirs sont destinés à favoriser la reproduction des espèces cavernicoles. On les place pour palier à l'insuffisance de cavités naturelles, parfois aussi dans un but scientifique ou didactique. Le placement de nichoirs à rapaces ne doit pas être entrepris à la légère. Il faut connaître l'essentiel de la biologie de l'oiseau, les milieux naturels qu'il fréquente (voir l'encyclopédie), prendre conseil en cas de doute auprès des associations ornithologiques, se concerter éventuellement avec d'autres ornithologues au niveau local. Vous trouverez ci-dessous quelques indications et croquis pour réaliser différents modèles (il en est de plus élaborés, se référer alors à la littérature spécialisée) pratiques, faciles à assembler et qui ont fait leurs preuves.

 

Modèle vertical classique pour chouette chevêche et chouette de Tengmalm

 

Planches de 2 cm d'épaisseur

Face et dos : 32 x 20 cm

Côtés : 32 x 16 cm

Toit : 26 x 20 cm

Fond : 22 x 20 cm

Trou d'envol : 7 cm

 

Du fil de fer souple est fixé aux pitons vissés dans la planche de dos. On serre le fil autour de l'arbre. La planche de face comporte une section inférieure amovible pour permettre le contrôle et le nettoyage.

 

 

 

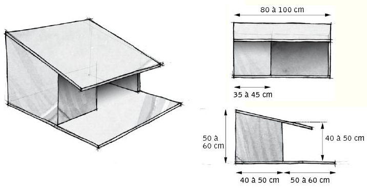
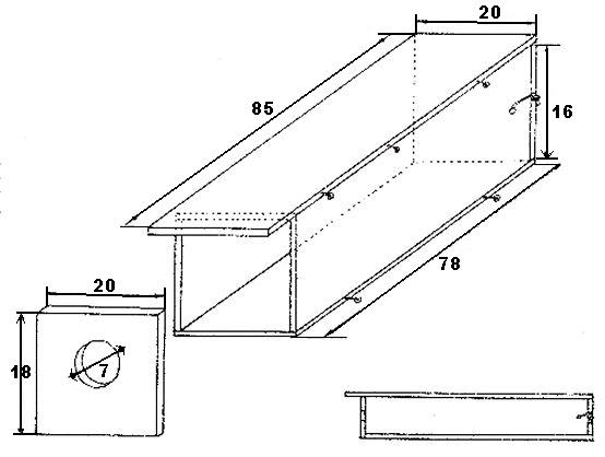
Modèle horizontal pour chouette chevêche

 

Planches de 2 cm d'épaisseur

Face : 20 x 18 cm

Dos : 20 x 16 cm

Côtés : 76 x 16 cm

Toit : 85 x 20 cm

Fond : 78 x 20 cm

Trou d'envol : 7 cm 

 

On assemble le toit, qui dépasse de 5 cm, le fond et les côtés. La face est clouée. Le dos, amovible, s'imbrique entre toit et fond et sa fermeture est renforcée par 2 crochets et pitons. Des pitons sont également vissés sur les tranches des parois de toit et de fond pour la fixation à l'arbre.

 

Modèle "caisse" pour chouette effraie

 

Planches de 2 cm d'épaisseur

Petits côtés : 40 x 36 cm

Toit et grands côtés : 65 x 40 cm

Fond : 61 x 36 cm

Cloison intérieure : 36 x 20 cm

Trou d'envol : 18 x 18 cm 

 

Simple boîte ou caisse avec couvercle à charnière et petite cloison intérieure placée à 36 cm, du bord droit.

A placer dans un grenier, une grange, un clocher, une ruine.

 

Modèle vertical classique pour chouette hulotte

 

Planches de 2 cm d'épaisseur

Face et dos : 52 x 25 cm

Côtés : 52 x 21 cm

Toit : 30 x 25 cm

Fond : 28 x 25 cm

Trou d'envol : 14 x 14 cm 

 

Même système de contrôle et de fixation que pour le modèle classique pour chouette chevêche. Faire reposer la base du nichoir sur une branche. Placer à 5 m de hauteur ou au-delà.

 

 

 

Faux nid pour hibou moyen-duc

 

Cadre en lattes de bois tendu de treillis (type treillis pour poulailler). On entrelace des branchettes et brindilles sur le pourtour en se servant des mailles, puis des brindilles plus fines au milieu. Les dimensions hors tout avoisinent 35 x 35 cm et la largeur des lattes 5 à 7 cm.

Ce faux nid, destiné à attirer le moyen-duc, est fixé horizontalement contre un tronc, soutenu par des branches, à une hauteur de 4 à 5 m au moins. On le disposera dans les bosquets de conifères ou les massifs d'épicéas ou de pins des lisières, là où la présence du hibou a été remarquée.

 

 

Nichoir pour faucon crécerelle, faucon pèlerin (par agrandissement), chouette hulotte et chouette effraie

 

Epaisseur du toit : 2 cm

Epaisseur des cloisons : 1 cm

Modèle pour crécerelle, hulotte et effraie :

A = 70 cm

B = 60 cm

C = 30 cm

D = 15 cm

E = 15 cm

F = 6 cm

G = 35 cm

H = 65 cm

I = 30 cm

J = 55 cm

 

Modèle pour pèlerin

 

A = 220 cm

B = 200 cm

C = 100 cm

D = 15 cm

E = 50 cm

F = 6 cm

G = 80 cm

H = 75 cm

I = 35 cm

J = 105 cm

 

 

 

 

 

 

 

 

 

 

 

 

 

 

 

 

 

 

 

 

 

 

 

 

 

 

 

 

 

 

Nichoir pour faucon pèlerin

La boite de ce nichoir peut être en bois résistant à l'humidité mais non traité (sapin, peuplier) et peint, vernis ou couvert de résine et de fibre de verre, pour le rendre imputrescible, en fibre de verre, en fibrociment, en béton ou en contreplaqué marine.

A l'intérieur, du gravier rond, d'une taille comprise entre une grain de blé et un grain de maïs, est disposé sur des hérissons de cailloux. Un rebord en bois (hauteur 7 cm) doit être ajouté sur la partie externe (ou balcon) du nichoir afin de retenir la couche de gravier et protéger les oeufs et les jeunes d'une chute éventuelle. Pour permettre à l'eau de s'écouler, le nichoir devra être très légèrement incliné et le plancher percé de trous.

 

Nichoir pour faucon crécerelle

 

Pour construire le nichoir, on utilise de préférence du bois résistant à l'humidité (sapin par exemple), voire du contreplaqué normal non raboté. Le faucon crécerelle nécessite un nichoir spécifique de type semi-ouvert dont les dimensions sont 500 x 400 x 420 mm. L'épaisseur du bois doit être d'au moins 20 mm. Il est ensuite recommandé de garnir le fond d'une couche de tourbe ou de sciure de 5 cm d'épaisseur.

Le nichoir doit être installé dans un grand arbre isolé, sur un poteau, en bordure d'un bosquet ou contre un batiment à une hauteur minimale de 5 m. Son ouverture devra être exposée à l'abri des vents dominants (et donc de la pluie), et de préférence à l'est ou sud-est.

 

[Accueil][Ancêtres][Biologie][Morphologie][Classification][Prédation][Encyclopédie][Avec l'Homme][Fauconnerie][Nichoirs][Perchoirs][Liens]

Copyright (c) 2005. Tous droits réservés.

thibautvt@hotmail.com